Unsere Haustypen
Grundstücke
Aktionen
Komplettangebote
Referenzobjekte
Startseite
Wo sind wir?
Bauleistung
Impressum
Kontakt
Jobangebote
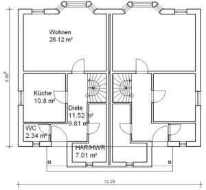
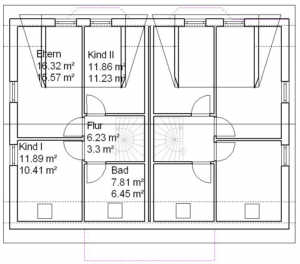
HBC 3112G
Beschreibung:
zurück
© HanseBauContor 2008 - Die Grundrisse sind Vorschläge, Maße und Flächen werden im Planungsgespräch präzisiert!