Unsere Haustypen Grundstücke Aktionen Komplettangebote Referenzobjekte
     

 

HBC 1131W5  


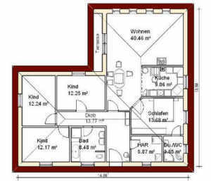
Beschreibung:

In diesem Winkelbungalow sind auf 131 m² Wfl. insgesamt 5 Zimmer angeordnet. Als Besonderheit ist zu nennen, daß das Elternschlafzimmer mit einem eigenen separatem Bad ausgestattet ist und der Koch und Essbereich in offener Weise mit dem Wohnraum harmoniert.
zurück
 
© HanseBauContor 2008 - Die Grundrisse sind Vorschläge, Maße und Flächen werden im Planungsgespräch präzisiert!